Double-Storey Extension, Loft Conversion & Full Refurbishment in Oxford

Project Overview
- Location: Cranmer Road, Oxford
- Project Type: Double-Storey Extension, Loft Conversion & Full Refurbishment
- Duration: 9 months
- Role: Principal Contractor (Full Project Delivery)
Introduction
This project came to us through a recommendation from a previous client who had worked with DKM Builders Oxford Ltd on a similar residential project. Following an initial consultation and site visit, we provided a clear budget outline and project approach, which aligned with the client’s expectations.
The client was confident in proceeding with us, and once the scope and budget were agreed, the contract was signed and the project progressed in a structured and organised manner.
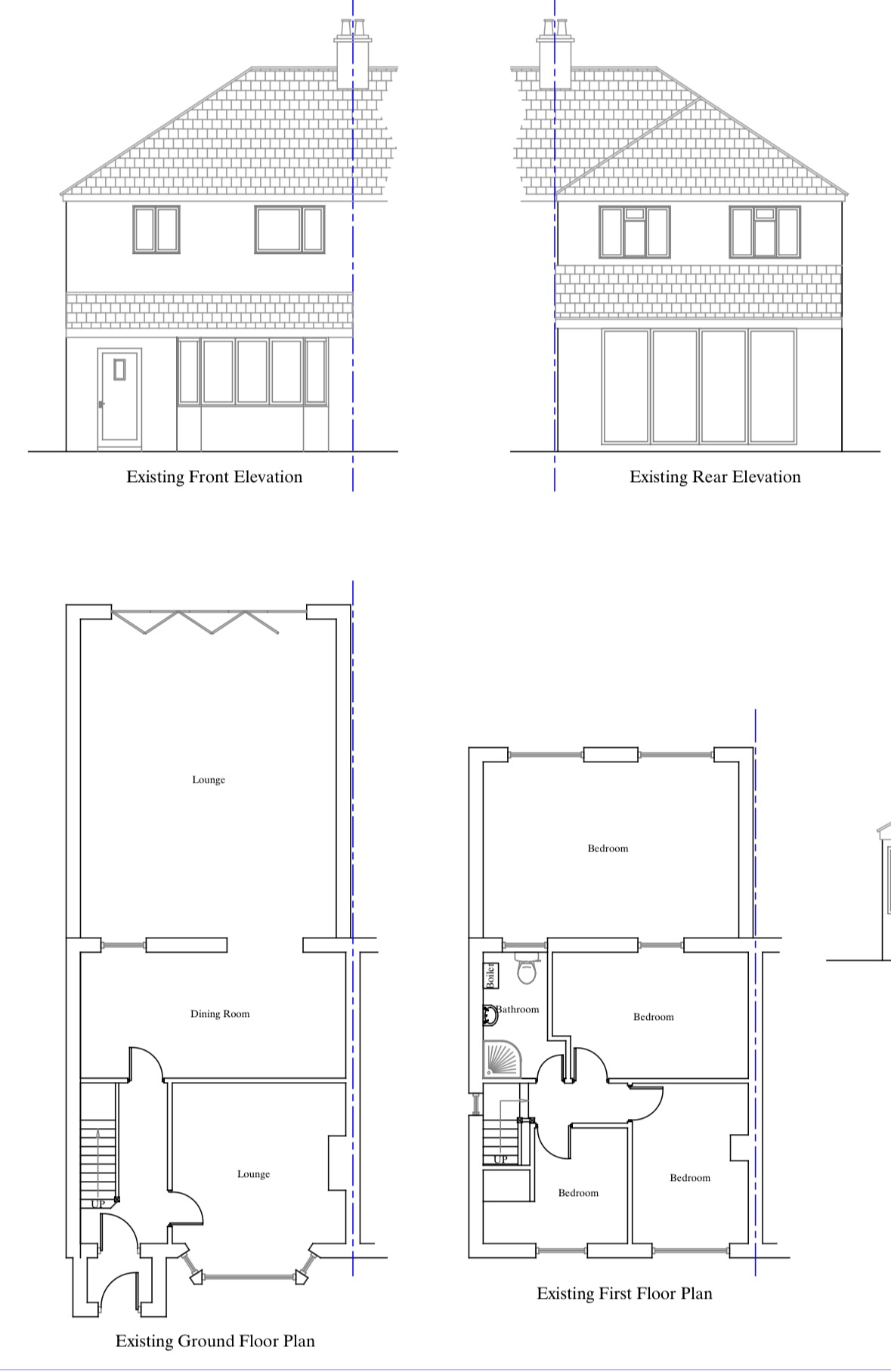
The works involved the complete transformation of an existing residential property, including a double-storey rear extension, single-storey extension, loft conversion, full internal refurbishment, and external landscaping.
Demolition & Strip-Out
The project commenced with a full demolition and strip-out of the existing property. Internal elements were removed, and the structure was prepared for redevelopment. This phase ensured a controlled starting point and allowed for all structural works to be carried out efficiently.
Front Porch Construction
As part of the early stages of the project, a new front porch was constructed. This formed part of the overall redesign of the property’s front elevation and was completed prior to progressing with the main structural phases of the build.
Loft Conversion Phase
Following the initial works, the loft conversion was undertaken. This included the formation of the new roof structure, installation of structural supports, and the creation of additional living space within the roof.
Completing the loft at this stage allowed the upper structure of the property to be fully established before progressing to the extension works.
Extension Works
Once the loft conversion was completed, construction of the double-storey and single-storey rear extensions commenced.
This phase involved new foundations, structural steel installation, and the formation of new openings to create a more open-plan and functional layout throughout the property.
Internal Fit-Out & Finishes
After the structural works were completed, the project progressed into the internal fit-out stage. This included all first fix and second fix works, followed by the installation of kitchens, bathrooms, flooring, and all internal finishes.
The client was involved in selecting materials and finishes throughout, while all procurement, coordination, and site management were handled by DKM Builders Oxford Ltd.
Compliance & Certification
Throughout the project, DKM Builders Oxford Ltd managed all required inspections and coordination with Building Control, ensuring that each stage of the build was reviewed and approved in line with current regulations.
All associated trades, including electrical and plumbing works, were carried out by qualified professionals, with the relevant certifications issued upon completion. The client was provided with all necessary documentation, including Building Control sign-off and compliance certificates for installed systems.
External Works & Completion
External works and landscaping were completed alongside the final stages of the build, ensuring the entire property was delivered as a finished and cohesive project.
The project was completed over approximately nine months, with all works delivered in line with the agreed scope and programme.
Outcome
The completed project represents a full redevelopment of the original property. The combination of extensions, loft conversion, and full refurbishment has significantly increased the usable space and improved the overall layout and functionality of the home.
Throughout the project, DKM Builders Oxford Ltd maintained full control over delivery, ensuring clear communication, structured coordination, and a consistently high standard of workmanship from start to completion.












