Single-Storey Rear Extension & Landscaping in Oxford

Project Overview
- Location: Hayward Road, Oxford (OX2 8LW)
- Project Type: Single-Storey Rear Extension & Landscaping
- Role: Principal Contractor (Full Project Delivery)
- Architect: http://cp-studios.co.uk/
Introduction
This project was introduced through collaboration with an architect, who contacted DKM Builders Oxford Ltd to provide a quotation for the proposed works. Following a detailed review of the drawings and project scope, we issued a clear and structured quotation.
The clients were satisfied with both our approach and the proposed delivery, and the project proceeded under our management as principal contractor.
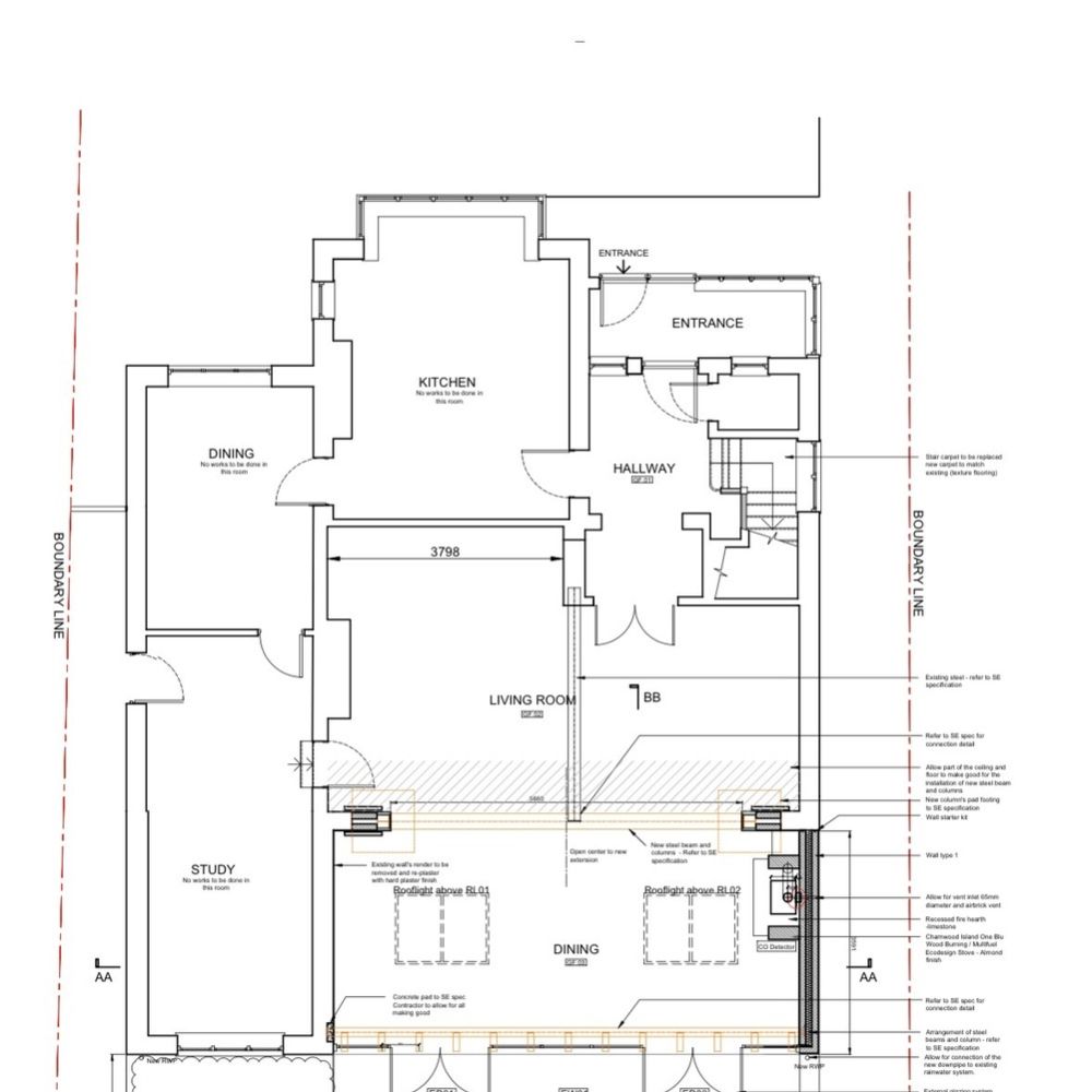
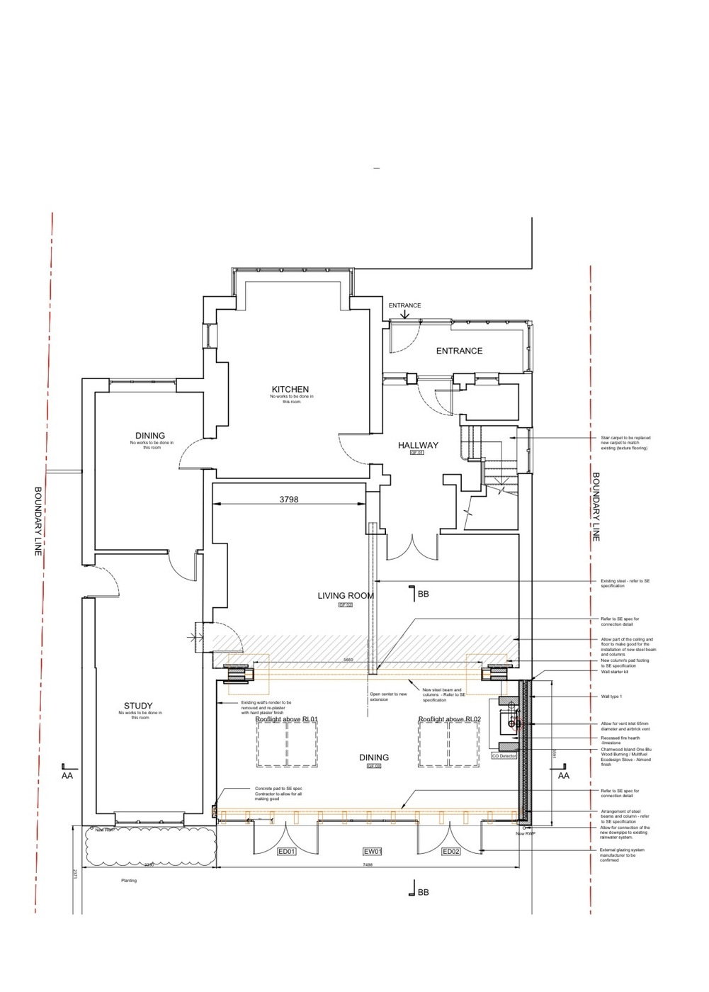
The works involved the construction of a single-storey rear extension, structural alterations to the existing property, and full external landscaping.
Structural Alterations
The project began with the opening up of the entire rear elevation of the property to create a new open-plan layout.
This required the installation of a structural steel beam spanning across the rear of the house, allowing for a seamless transition between the existing property and the new extension.
All structural works were carried out in coordination with the appointed structural engineer and in line with Building Control requirements.
Extension Construction
A new single-storey rear extension was constructed with a pitched roof design, incorporating skylights to maximise natural light within the new space.
The extension was designed to integrate with the existing property, creating a functional and well-balanced open-plan living area.
Architectural Coordination
The project was carried out in close collaboration with the appointed architect, who remained involved throughout the build. Each stage of the construction was reviewed and
monitored, ensuring the works were delivered in line with the design intent and technical requirements.
All aspects of the project were completed to the architect’s satisfaction, reflecting a well-coordinated and professionally managed delivery.
Internal Works
Following the completion of the structural shell, internal works were carried out to prepare the space for final finishes.
This included all necessary first fix and second fix works, ensuring the new extension was fully integrated with the existing layout of the property.
External Works & Landscaping
As part of the project, full landscaping works were completed to the rear of the property.
This included paving and the installation of new turf, creating a clean and functional outdoor space that complements the extension and overall layout.
Compliance & Certification
DKM Builders Oxford Ltd managed all coordination with Building Control throughout the project, ensuring that each
stage of the works was inspected and approved in line with current regulations.
All associated trades, including electrical and plumbing works, were carried out by qualified professionals, with the relevant certifications issued to the client upon completion.
Outcome
The completed project has transformed the rear of the property, creating a bright and open living space with direct access to a newly landscaped garden.
Through structured planning, coordination with the architect, and consistent site management, the project was delivered to a high standard, meeting both the client’s expectations and the design intent.













